
El Ayuntamiento aprobó el lunes un contrato con Craftwater Engineering, Inc. para los servicios de ingeniería y diseño de los humedales de tratamiento que se construirán en dos lugares adyacentes al canal Arroyo Seco.
Los humedales de tratamiento son ecosistemas construidos que utilizan procesos naturales para eliminar contaminantes.
El contrato de $1,051 millones fue aprobado como parte del calendario de consentimiento del consejo del lunes.
En una carta al consejo antes de la votación, el director ejecutivo de la Fundación Arroyo Seco, Tim Brick, se opuso al plan.
“No apruebe este contrato”, instó Brick. “En cambio, instruya al Departamento de Obras Públicas para que involucre a la comunidad en un sólido proceso de planificación, y verá el abrumador apoyo que hay en Pasadena para restaurar el carácter natural del Arroyo y no tirarlo a la basura con tanques subterráneos, tuberías y más concreto. .”
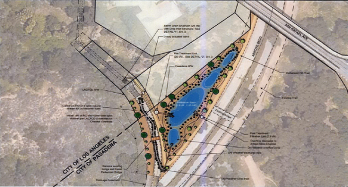
Pasadena y South Pasadena ya habían aprobado la construcción del plan de humedales de tratamiento anteriormente como parte del Proyecto de captura de aguas pluviales y humedales de tratamiento de San Rafael.
La medida cumplió con el permiso del Sistema Nacional de Eliminación de Descargas de Contaminantes (NPDES) emitido por la Junta Regional de Control de Calidad del Agua de California (RWQCB) que requiere que las ciudades tomen las medidas necesarias para reducir o eliminar la contaminación en la escorrentía de aguas pluviales.
A través de la construcción de los humedales de tratamiento, los flujos de clima seco y porciones de los flujos de tormenta se desviarán tanto del Arroyo San Rafael como del Arroyo Seco para tratamiento activo y pasivo en los humedales.
El agua tratada se almacenará y reutilizará como riego en Arroyo Park y Arroyo Seco Golf Course en South Pasadena.
Las fuentes de financiamiento para el proyecto incluyen la Ley de Bonos de Agua y Parques del Estado de California que reservó $3.5 millones para el proyecto de humedales de tratamiento de Pasadena y South Pasadena y los $4.771 millones en subvenciones otorgadas por la Medida W del Condado de Los Ángeles – Programa de Subvenciones de Agua Limpia y Segura , según informe del personal.
