La Comunidad

Solicitud del galardonado fabricante de automóviles eléctricos Lucid Motors para la oficina de ventas de Pasadena ante el oficial de audiencias

Published on Monday, 03 de January, 2022 | 5:16 pm
 

El Oficial de Audiencias de Pasadena continuará una audiencia pública el miércoles 5 de enero sobre una solicitud de Lucid Motors, los fabricantes del nuevo vehículo eléctrico Lucid Air, para un Permiso de Uso Condicional menor (Minor CUP) para permitir la operación de ventas de vehículos y oficina de arrendamiento en 32 W. Colorado Blvd. en Pasadena.

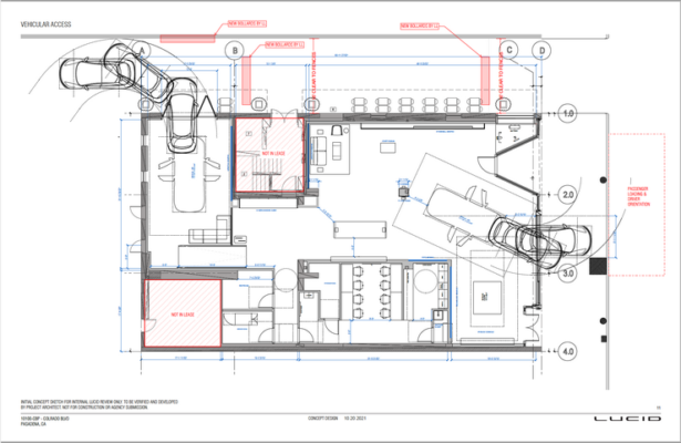
El espacio incorporará un showroom interior que exhibirá un máximo de dos vehículos, según planos presentados al Departamento de Planificación y Desarrollo Comunitario. Dentro de la sala de exposición, los representantes de la empresa pueden recibir a los clientes y discutir los precios, los pedidos de vehículos y permitirles probar la experiencia de conducción de Lucid Motors con pruebas de conducción reales o mediante tecnología de realidad virtual, dijo el Departamento de Planificación.

El informe dijo que la oficina y la sala de exposición propuestas estarán ubicadas dentro de un edificio comercial existente de tres pisos en el sitio de 4,386 pies cuadrados que está en el lado sur de W. Colorado Blvd. entre Mills Place al oeste y South Fair Oaks Ave. al este, con Edwin Alley al sur.

Lucid Motors ocupará un espacio para inquilinos de 3866 pies cuadrados existente en el primer piso que solía estar ocupado por un restaurante de comida rápida, según el informe. La oficina y la sala de exposiciones estarán en funcionamiento de 11 a.m. a 8 p.m. De lunes a sábado y de 11 a. M. A 7 p. M. el domingo, agregó el informe.

Los clientes que tengan la intención de hacer una prueba de manejo de los vehículos pueden usar cualquiera de los seis vehículos Lucid Air que se reservarán para el uso de prueba de manejo y se estacionarán en la estructura de estacionamiento de la ciudad en 33 E. Green Street, según el informe.

“El Departamento de Transporte ha determinado que la estructura de estacionamiento tiene capacidad suficiente para acomodar los vehículos y recomienda una condición de aprobación que el propietario de la empresa debe asegurar acuerdos de estacionamiento con la División de Estacionamiento de la Ciudad de Pasadena antes de la emisión de cualquier permiso de construcción”, el Se lee el informe del Departamento de Planificación.

El Departamento de Planificación recomienda la aprobación de la solicitud de CUP menor, diciendo que la oficina de ventas y la sala de exposición propuestas, clasificadas como Servicios de vehículos-Venta y arrendamiento, uso limitado, serían compatibles con otros usos existentes en las cercanías.

“El proyecto cumple con el propósito del Código de Zonificación, para propiedades dentro del distrito de zonificación CD-1-AD-1”, dice el informe. “Además, el proyecto es consistente con las metas y objetivos del Plan General. Según el análisis del personal de la adición solicitada, el uso de la venta de vehículos seguiría siendo compatible con los usos de la tierra adyacente y no tendría como resultado ningún impacto adverso en el área circundante “.

Los miembros del público pueden acceder a la audiencia pública a través de Zoom, en https://us02web.zoom.us/j/83530315266 o llamando al (669) 900-6833 y utilizando el webinar ID 835 3031 5266.

Los comentarios públicos pueden enviarse por correo electrónico a htam@cityofpasadena.net.

El público también puede proporcionar comentarios en vivo sobre Zoom en el momento de la audiencia, que comienza a las 5:30 p.m.

Get our daily Pasadena newspaper in your email box. Free.

Get all the latest Pasadena news, more than 10 fresh stories daily, 7 days a week at 7 a.m.

Make a comment

Your email address will not be published. Required fields are marked *